mieszkania > Gdynia
LOKALIZACJA: GDYNIA-OKSYWIE, UL. APENIŃSKA;
Cena z m2: od 5 500 do 6 000 zł (garaż - 1500 zł brutto, miejsca parkingowe - 1300 zł brutto).
Trzykondygnacyjna kamienica przy ul. Apenińskiej w gdyńskim Oksywiu to nowa propozycja dewelopera MaxBud. W stylizowanym budynku dominują szkło, metal, chłodna kolorystyka i duże okna. Ma to nadać willowy charakter wielorodzinnemu budynkowi.
Dostępne będą 33 lokale, dwie cichobieżne windy i hala garażowa. Całość zostanie ogrodzona i będzie monitorowana.
Mieszkanie 2-pokojowe. Źródło. materiał dewelopera
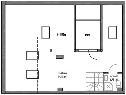
Mieszkanie 3-pokojowe. Źródło. materiał dewelopera
Lokale zaprojektowano jako funkcjonalne 2- lub 3-pokojowe mieszkania o powierzchniach od 33 do 63 mkw z balkonami lub tarasami. Z nich rozciągał się będzie - w zależności od położenia lokalu - widok na Zatokę Gdańską, port lub centrum Gdyni.
Mieszkańcy zlokalizowanego przy ul. Apenińskiej budynku będą mieć dogodne skomunikowanie z centrum Gdyni (samochodem przez Estakadę Kwiatkowskiego, kilka linii autobusowych, w przyszłości Kolej Metropolitalna) i Trójmiastem (estakadą do Obwodnicy Trójmiasta) oraz Kaszubami (estakadą do drogi krajowej nr 6 lub 20). Lokalnymi drogami można szybko dojechać do Półwyspu Helskiego i nad otwarty Bałtyk.
Oferta mieszkaniowa
(szczegóły na www.maxbud-mieszkania.pl)

Trzykondygnacyjna kamienica przy ul. Apenińskiej w gdyńskim Oksywiu to nowa propozycja dewelopera MaxBud. W stylizowanym budynku dominują szkło, metal, chłodna kolorystyka i duże okna. Ma to nadać willowy charakter wielorodzinnemu budynkowi.
Dostępne będą 33 lokale, dwie cichobieżne windy i hala garażowa. Całość zostanie ogrodzona i będzie monitorowana.
Mieszkanie 2-pokojowe. Źródło. materiał dewelopera
Mieszkanie 3-pokojowe. Źródło. materiał deweloperaLokale zaprojektowano jako funkcjonalne 2- lub 3-pokojowe mieszkania o powierzchniach od 33 do 63 mkw z balkonami lub tarasami. Z nich rozciągał się będzie - w zależności od położenia lokalu - widok na Zatokę Gdańską, port lub centrum Gdyni.
Mieszkańcy zlokalizowanego przy ul. Apenińskiej budynku będą mieć dogodne skomunikowanie z centrum Gdyni (samochodem przez Estakadę Kwiatkowskiego, kilka linii autobusowych, w przyszłości Kolej Metropolitalna) i Trójmiastem (estakadą do Obwodnicy Trójmiasta) oraz Kaszubami (estakadą do drogi krajowej nr 6 lub 20). Lokalnymi drogami można szybko dojechać do Półwyspu Helskiego i nad otwarty Bałtyk.
Oferta mieszkaniowa
(szczegóły na www.maxbud-mieszkania.pl)





